Los techos filtrantes Morgui se han diseñado para instalaciones de cocinas profesionales, donde se tengan que captar humos y vapores en grandes superficies.

Techo filtrante en el Barcelona Culinary Hub
La nueva escuela superior de gastronomía de Barcelona cuenta con más de 121 m² de techo filtrante morgui.
Os presentamos uno de los proyectos más exitosos del 2022. Se trata del diseño de la extracción de humos de la nueva escuela superior de gastronomía BARCELONA CULINARY HUB.
Es una escuela de la red internacional de educación superior del Grupo Planeta y un centro adscrito de la Universidad de Barcelona. Los pilares de la escuela se fundamentan en la innovación, la formación e investigación gastronómica, la sostenibilidad y la creatividad.
Su metodología se basa en el “learning by doing” y en consecuencia es vital contar con aulas de aplicación. Aquí entramos nosotros, con la fabricación de más de 121 m² de techo filtrante y la extracción de humos para estas aulas.
A continuación, os explicamos como lo hicimos, paso a paso.

1/ Primera fase Estudio y evaluación del proyecto
En la primera fase, nos centramos en analizar las necesidades del proyecto y en evaluar la situación del edificio con el resto de agentes implicados: arquitectos, ingenieros y cliente.
La escuela dispone de 2 salas para realizar cursos y prácticas con equipamiento hostelero profesional. Ambos espacios requerían una extracción de humos industrial que abarcara grandes zonas de cocción, asegurando la visibilidad, la movilidad y la comodidad de los alumnos y profesores.
La decisión de optar por un techo filtrante Morgui fue motivada precisamente para garantizar una óptima extracción de humos sin renunciar a estas condiciones y porque la producción en la cocina no sería de alto rendimiento, generando excesivo humo, grasa u hollín.
Tras la presentación de la propuesta final, el equipo de Morgui nos pusimos manos a la obra. Contábamos con la profesionalidad de nuestros técnicos especializados y con un know-how contrastado por más de 25 años de experiencia, además de un antiguo proyecto de características muy similares: el centro universitario de Turismo, Hotelería y Gastronomía en Barcelona (CETT-UB).



2/ Segunda fase Diseño y planimetría
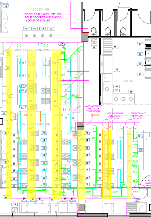
La segunda fase consistió en el diseño preciso de los techos filtrantes y especialmente de todo el conjunto de tubería implicado, sobre todo en la sala principal donde se ubica el laboratorio gastronómico. Únicamente esta sala contenía 77 m² de techo filtrante Morgui y todo un entramado de conductos de extracción y aportación de aire cuidadosamente calculados, siguiendo la normativa de sectorización EI30.
Así mismo, se hizo con en el diseño y cálculo del aula pedagógica de la primera planta, de una superficie total de 44 m².
En este punto, la coordinación con la ingeniería de la obra, arquitectos y constructora fue crucial. El resultado de este trabajo colaborativo y respeto a las indicaciones técnicas de las partes facilitaron muchísimo la faena, concretamente en el diseño e instalación de la tubería circular y rectangular de la extracción.



3/ Tercera fase Fabricación e instalación
La tercera fase fue la fabricación e instalación de todos los productos y componentes.
Durante 5 semanas se construyeron los techos filtrantes de acero inoxidable AISI 304 de 1 mm de espesor. Su configuración es a base de módulos centrales o perimetrales de 310 mm de altura, con plenums individuales y registrables.
Los colectores de filtros incorporan un total de 217 filtros de placas AISI 430 con sistema anticortes de 490x250x25mm y, bandejas recoge grasas en todas las líneas de filtros.
También incorporan 19 luminarias de 1200x250 mm con tecnología LED 4000K y protección IP54, así como sistemas contra incendios con protección a 3 niveles y línea de detección mediante fusibles.
Tras la fabricación de los techos filtrantes, se montaron las cajas de ventilación, elementos clave para la extracción de humos. En este caso, se produjeron dos cajas de ventilación UNIC 400 de marca Morgui. La primera, una 30/14 de 15cv para la clase principal y una 25/13 de 10cv para el aula de formación de la primera planta. Ambas se componen de un ventilador de simple oído y motor a transmisión, interruptor tripolar de parada de emergencia con protección IP65 y sombreros JET de 800 y 710 en la salida de aire.
Con respecto a la regulación y control de la extracción, se instalaron dos convertidores de frecuencia de la marca Invertek Drives de entrada y salida trifásica (380 V), protección IP66 y, de 11 kW y 7.5 kW de potencia respectivamente. Juntamente con los variadores se colocaron dos potenciómetros digitales OPTIPAD para controlar la extracción a distancia.



4/ Cuarta fase Puesta en marcha y entrega
Finalmente, llegamos a la última fase: la puesta en marcha y entrega del proyecto.
Después de nueve meses de trabajo, diseño, montaje, fabricación y visitas técnicas podemos ver acabado este gran proyecto. Es todo un orgullo poder compartir un resultado gratificante tanto visualmente como funcionalmente.
Actualmente, ambos espacios de formación ya está en pleno funcionamiento, formando a futuros chefs y profesionales del sector de la hostelería.















